Предмет: Другие предметы,
автор: ekaterinasommer
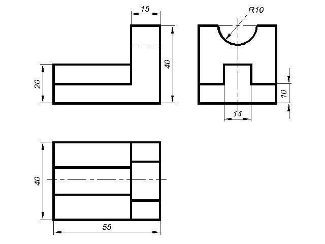
Начертить вид с вверху, с лева и главный
Приложения:
Ответы
Автор ответа:
2
Размеры взяла произвольные.
Второй чертеж в приложении - нахождение проекций точек.
Обозначение точек в скобках говорит о том, что на данном виде точку не видно.
Приложения:
katekoneva:
помоги мне пожалуйста
Похожие вопросы
Предмет: Английский язык,
автор: мирнаядева
Предмет: Русский язык,
автор: Аноним
Предмет: Русский язык,
автор: лол935
Предмет: География,
автор: rina123regia45
Предмет: Обществознание,
автор: rlyaaaaaaa24