Предмет: Геометрия,
автор: bk1409
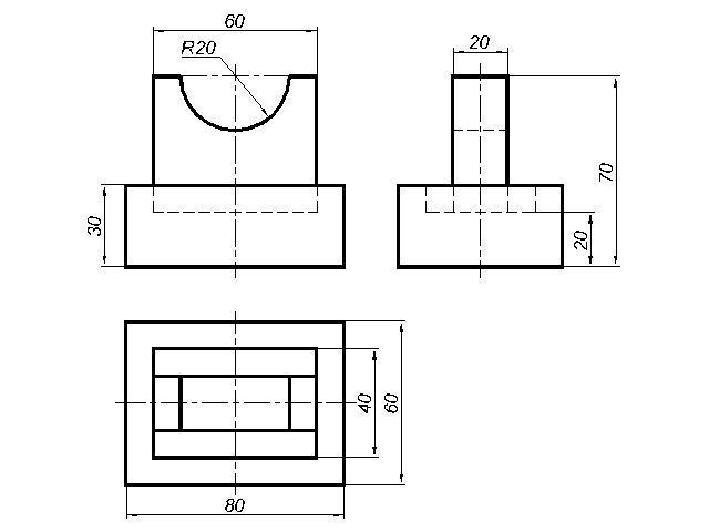
Достроить 3 вид и начертить деталь в изометрии. Даю 100 баллов)
Приложения:
Ответы
Автор ответа:
2
Ответ:
Объяснение:
Так как размеры не указывают по невидимым (штриховым) линиям, на третьем чертеже вид слева заменила профильным разрезом.
Приложения:
BlackFox2030:
здравствуйте! можете пожалуйста помочь с геометрией
Похожие вопросы
Предмет: Математика,
автор: пик47
Предмет: История,
автор: йццк
Предмет: Русский язык,
автор: Дарьяdasha28
Предмет: Математика,
автор: элина345
Предмет: Математика,
автор: gdrespectmep94l7q