Предмет: Другие предметы,
автор: fdnjgngdfo
СРОЧНО! 35 БАЛЛОВ! ЧЕРЧЕНИЕ
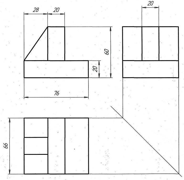
Выполнить задание в тетради: на основе представленного чертежа сделать рисунок объемного объекта (Размеры указывать не надо, оси должны быть прорисованы и подписаны, невидимые контуры детали также должны быть прочерчены).
Приложения:
Ответы
Автор ответа:
0
129 см ниже и 148 356 в коммах
Похожие вопросы
Предмет: Русский язык,
автор: пррпр2
Предмет: Русский язык,
автор: nikolaevaelina0
Предмет: Русский язык,
автор: dasha23321
Предмет: Русский язык,
автор: ТаняВолкова11
Предмет: Окружающий мир,
автор: людочкасергеевна