Предмет: Другие предметы,
автор: arykbaevanaku
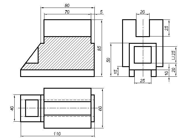
Помогите мне пожалуйста построить 3 вид и диметрию как на примере
Приложения:
Ответы
Автор ответа:
1
Ответ:
Объяснение:
Извините, но не нужно меня торопить. Я не работаю в "Знаниях", я - просто добровольный помощник. Захочу - помогу, а не захочу - уж извините.
Приложения:
arykbaevanaku:
извините спасибо вам огромное
Удачи!!!
Похожие вопросы
Предмет: Русский язык,
автор: evgeni228
Предмет: Русский язык,
автор: Октябрт
Предмет: Английский язык,
автор: fedorovaeg1953
Предмет: Английский язык,
автор: dimanvla
Предмет: Русский язык,
автор: xxhbjpdraeina