Предмет: Другие предметы,
автор: nikitkabravo76
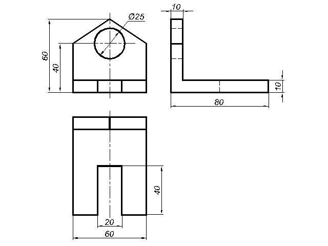
По данному виду и наглядному изображению постройте еще два вида детали, очерченных габаритными рамками. Размеры ставить.
ПОМОГИТЕ ПЛИИИЗЗ)))
Приложения:
Ответы
Автор ответа:
0
Ответ:
Объяснение:
+++++++++++++++++++++++++++++++++++
Приложения:
Похожие вопросы
Предмет: Русский язык,
автор: Shaman241689
Предмет: Українська мова,
автор: ВікаV
Предмет: Русский язык,
автор: svitsvit1
Предмет: Литература,
автор: Dinozavrik0007
Предмет: Другие предметы,
автор: medinatum