Предмет: Другие предметы,
автор: how34
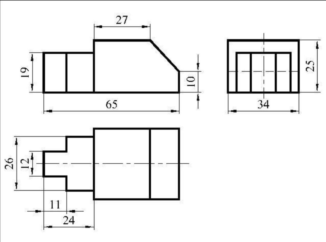
75 БАЛЛОВ. кто шарит в инженерке, помогите пожалуйста. Построить МОДЕЛИ по заданным проекциям
Приложения:
Ответы
Автор ответа:
1
Ответ:
Объяснение:
++++++++++++++++++++++++++++++
Приложения:
how34:
спасибо огромное, вы меня спасли ❤️
Удачи Вам!!!
Похожие вопросы
Предмет: Русский язык,
автор: vika55250535
Предмет: Математика,
автор: arinakulyaba
Предмет: Другие предметы,
автор: elinalyashchen1
Предмет: Математика,
автор: mashalash