Предмет: Другие предметы,
автор: Настёноч
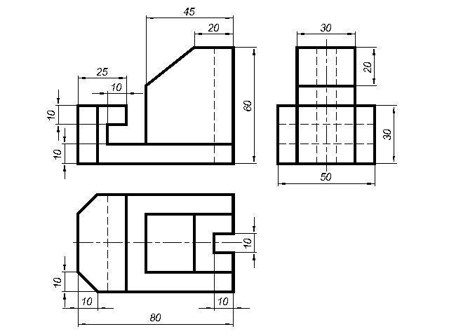
По двум видам модели построить третий вид и изометрию. Поставить размеры. Помогите, пожалуйста, тем, кто поможет, дам в 2 раза больше.
Приложения:
Букса:
Какая деталь Ваша?
Две, можете сделать, пожалуйста
Ответы
Автор ответа:
4
Ответ:
Объяснение:
++++++++++++++++++++
Приложения:
Огромное спасибо
Удачи!
Похожие вопросы
Предмет: Русский язык,
автор: kmarulasov
Предмет: Русский язык,
автор: lica200
Предмет: Русский язык,
автор: Alina89058824791
Предмет: История,
автор: данил2025
Предмет: Математика,
автор: 1717171718