Предмет: Другие предметы,
автор: ehvjkftd
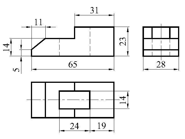
ЧЕРЧЕНИЕ.По двум проекциям модели построить третью
Приложения:
Ответы
Автор ответа:
0
Ответ:
Объяснение:
Первый чертеж - построение третьего вида
Приложения:
Похожие вопросы
Предмет: Биология,
автор: жжджжд
Предмет: Английский язык,
автор: supermailo2009
Предмет: Математика,
автор: rumaksofia54
Предмет: Математика,
автор: choomachenko
Предмет: Математика,
автор: Najibkhon