Предмет: Другие предметы,
автор: bibik12345
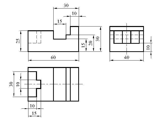
сделать виды: спереди, сверху, слева
(верхняя фигура)
Приложения:
Ответы
Автор ответа:
3
Ответ:
Объяснение:
+++++++++++++++++++
Приложения:
Похожие вопросы
Предмет: Химия,
автор: radyukanya
Предмет: Английский язык,
автор: kaluznaliza10
Предмет: Английский язык,
автор: mgurska78
Предмет: Математика,
автор: Аноним
Предмет: Алгебра,
автор: abdrhmnva